00%
Loading...
Menu
Open
Close
Close
Back
Selected Projects
Hoffman Street
Digby Street
Noe Street
Ireland Vacation
Miguel Street
Sanchez Street
Contact Us
Hoffman Street
Digby Street
Ireland Vacation
Design/Build
2016
Hickory Street
Design/Build,
Interior
2023
Upper Sanchez Street
Design/Build,
Concept,
Interior
Ireland Vacation
Design/Build
2016
Design
Build
Historic Preservation
Custom Vacation Home
01 /
02 /
03 /
04 /
05 /
06 /
07 /
08 /
keyboard_arrow_left
keyboard_arrow_right
Do what brings you joy. When creating a home, fill it with things that make you happy. They should stir fond memories and help you make new ones.
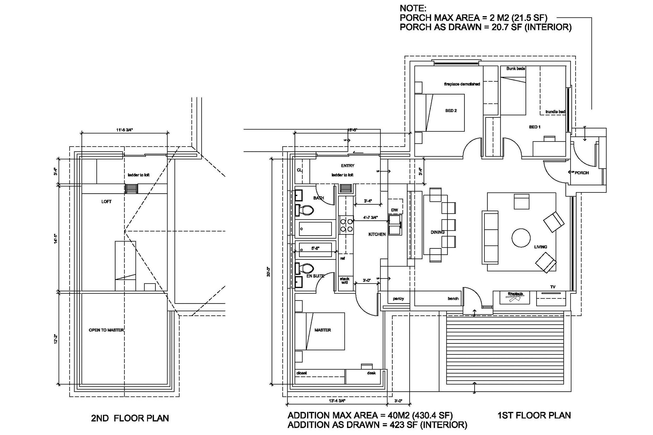
Our goal was to build a home that did not disrupt the environment in which it was built. One with the sea and surrounding hillside.
Builder – Luke Gilligan
keyboard_arrow_up
keyboard_arrow_down
Credits
Design / Builder
Luke Gilligan
Designers
Catherine Gilligan
Developers
Luke Gilligan